how to measure bathroom sink

March 23, 2021

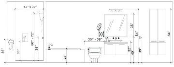
Measure the height of your old sink on the sink's exterior, top to bottom. This is easier to do after you have removed the sink and set it on a workbench or table. If you are putting in a completely new bathroom and want to figure out how big a sink you can get, first figure out what kind you want. A Guide for How to Measure Your Ring Size at Home. Rid your bathroom of lurking germs with these bacteria-targeting tricks that work. From how to descale a shower head to the easiest (and least gross) way to scrub

suggestion:

how to measure bathroom sink drain size
how to measure bathroom sink
how to measure bathroom sink size
how to measure bathroom sink faucet
how to measure bathroom sink replacement
how to measure bathroom sink drain
how to measure bathroom sink drain pipe
how to measure bathroom sink drain pipe size
how to measure sink drain size

You Might Also Like

0 comments